
|
Проект дома из оцилиндрованного бревна «О-88»
Общая площадь: 136 м.кв.
Стоимость строительства (базовый состав работ и комплектации)
| Стеновой материал и его объем (м3) |
п/материал, м3 |
всего, м3 |
Стоимость дома со сборкой |
Бревно оцилиндрованное (Архангельск) |
200мм |
77,43 |
22,91 |
100,34 |
1 434 652 руб. |
| 220мм |
82,76 |
22,91 |
105,67 |
1 472 725 руб. |
| 240мм |
91,60 |
22,91 |
114,51 |
1 622 345 руб. |
| 260мм |
98,11 |
22,91 |
121,02 |
1 755 077 руб. |
| 280мм |
107,01 |
22,91 |
129,92 |
1 904 745 руб. |
|
Стоимость фундамента
| Тип фундамента |
Объем |
Стоимость, руб |
| Монолитный армированный мелкозаглубленный ленточный фундамент сечением 0,3м*0,7м с устройством песчаной подушки 300мм | 18.47 м3 | 313 910 руб. |
| Монолитный армированный мелкозаглубленный ленточный фундамент сечением 0,4м*0,7м с устройством песчаной подушки 300мм | 24.62 м3 | 418 547 руб. |
| Свайно-винтовой фундамент 108/300/2500мм/3,0м (обвязка брус 200*200мм) | 87.93 пог.м. | 149 481 руб. |
|
Стоимость проекта:
| Вид проектной документации |
Стоимость, руб |
| Эскизный проект: | 5000 руб. |
| Архитектурный проект (раздел АР): | 17000 руб. |
| Архитектурный проект (раздел АР) при заказе строительства: | бесплатно |
| Спецификация стеновых элементов (производственная): | 17000 руб. |
| Другие разделы (конструкторский, водоснабжение, отопление, электрика и т.д.): | договорная |
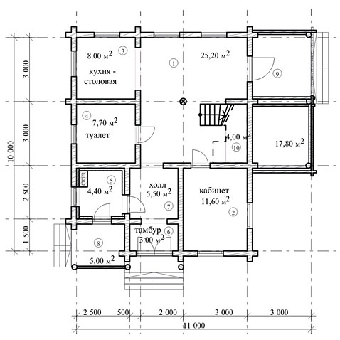
План первого этажа 
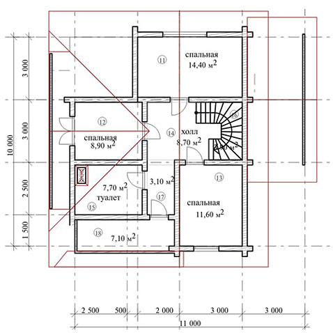
План второго этажа 
|

|