doma-brevno@mail.ru
 

 

Продажа проектов деревянных домов

НазадВерсия для печати

Проект дома из бревна «О-138»

Проект деревянного дома из бревна
Купить проект Купить проект

Общая площадь: 181.00 м.кв.

Стоимость строительства

(базовый состав работ и комплектации)

Стеновой материал и его объем (м3) п/материал, м3 всего, м3 Стоимость дома со сборкой
Бревно оцилиндрованное
(Архангельск)
200мм 98,81 33,16 131,97 1 849 548 руб.
220мм 106,82 33,16 139,98 1 920 255 руб.
240мм 117,34 33,16 150,50 2 056 283 руб.
260мм 126,41 33,16 159,57 2 202 561 руб.
280мм 133,58 33,16 166,74 2 350 045 руб.
В таблице указана ориентировочная стоимость строительства, которая может изменяться в зависимости от местоположения и условий строительства.

Стоимость фундамента

Тип фундамента Объем Стоимость, руб
Монолитный армированный мелкозаглубленный ленточный фундамент сечением 0,3м*0,7м с устройством песчаной подушки 300мм18.12 м3308 091 руб.
Монолитный армированный мелкозаглубленный ленточный фундамент сечением 0,4м*0,7м с устройством песчаной подушки 300мм24.16 м3410 788 руб.
Свайно-винтовой фундамент 108/300/2500мм/3,0м (обвязка брус 200*200мм)86.30 пог.м.146 710 руб.
В таблице указана ориентировочная стоимость строительства, которая может изменяться в зависимости от местоположения и условий строительства.

Стоимость проекта:

Вид проектной документации Стоимость, руб
Эскизный проект:5000 руб.
Архитектурный проект (раздел АР): 19000 руб.
Архитектурный проект (раздел АР) при заказе строительства: бесплатно
Спецификация стеновых элементов (производственная): 19000 руб.
Другие разделы (конструкторский, водоснабжение, отопление, электрика и т.д.): договорная
Получить консультацию по вопросам строительства дома или проекта Вы можете по тел. (495) 268-07-20 (без выходных) или по e-mail: doma-brevno@mail.ru. Будем рады ответить на Ваши вопросы.
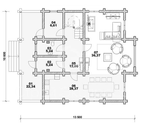
План первого этажа
План первого этажа
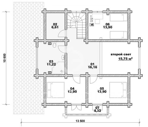
План второго этажа
План второго этажа

В проекте удобно объединены гостиная, столовая и кухня - они образуют общее пространство этого загородного бревенчатого дома. Три спальни размещены на втором уровне.



 

Изменение проекта дома